Paseo de Valdelasfuentes 3 (Alcobendas)

Piso en venta en Calle de Cavanilles 11, Pacífico, Retiro, Madrid

630.000€
Calle de Cavanilles, 11, Madrid, España

Detalles

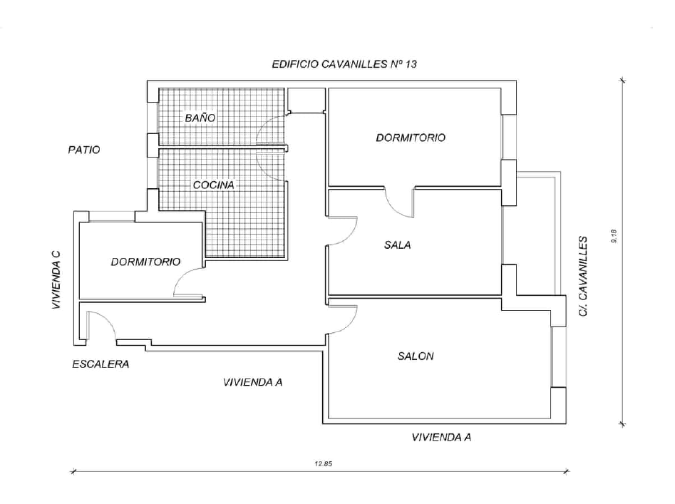
¡Descubre tu nuevo hogar en el corazón de Madrid! Este amplio piso en venta, situado en una de las zonas más emblemáticas de la ciudad, es una oportunidad única para personalizar a tu gusto. Con 97 m² construidos y 90 m² útiles, cuenta con 3 dormitorios y un baño completo, ideal para familias o como inversión. La vivienda, ubicada en la sexta planta de un edificio con ascensor, ofrece vistas impresionantes de la ciudad y un balcón perfecto para disfrutar del aire fresco.

El piso se encuentra en una zona muy bien comunicada, cerca del magnifico Parque del Retiro, transportes públicos, centros de salud y colegios, lo que lo convierte en una opción perfecta para quienes buscan comodidad y accesibilidad ya que cuenta con una rampa en el portal para personas con movilidad reducida.

Aunque el inmueble requiere reforma, el amplio recibidor y la distribución de las estancias ofrecen un sinfín de posibilidades. No dejes pasar esta oportunidad de adquirir un piso que combina ubicación, potencial y comodidad. ¡Ven a verlo!

  • NUMERO DE SERIE : 10238
  • DORMITORIOS: 3
  • BAÑOS: 1
  • ASCENSOR: SI
  • LUMINOSO: SI

TLF: (91) 661 01 67

  • VENTA INMUEBLES

Vídeo

Plano